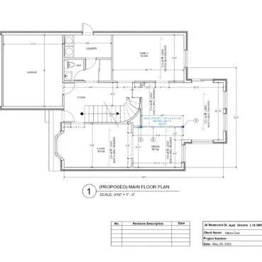
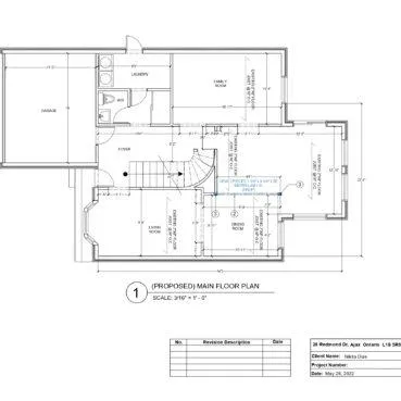
Architectural Cad Drawings and shop drawings.
An architectural drawing is a technical illustration used by architects, engineers, and construction professionals to develop, communicate, and execute building designs.
Architectural CAD drawings or shop drawings can be created for any scope of work, including specific items. For example, in sheet metal projects, shop drawings detail item locations, roof plans, elevations, sections, and profiles (such as metal flashings) with dimensions.

These drawings enable approvals, guide fabrication, and help installation crews accurately place each item on the project.
This includes:
01
Shop drawings for Fabricators
Shop drawings to plan any kind of product fabrication
02
Residential projects
Architectural full set of drawings for customs homes.
03
Commercial projects
Architectural plan development for commercial projects.
04
Sheet Metal Flashings Shop Drawings
Flashings profile plan locations and details
05
Engineering drawings
Engineering plans development for residential and commercial projects.
06
Mechanical drawings
Mechanical plans development for residential and commercial projects.
07
Electrical drawingsFull Width
Electrical plans development for residential and commercial projects.





Instagram
LinkedIn
Facebook