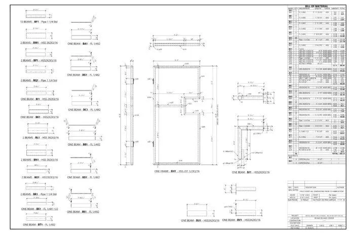
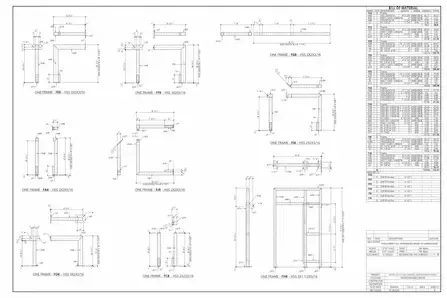
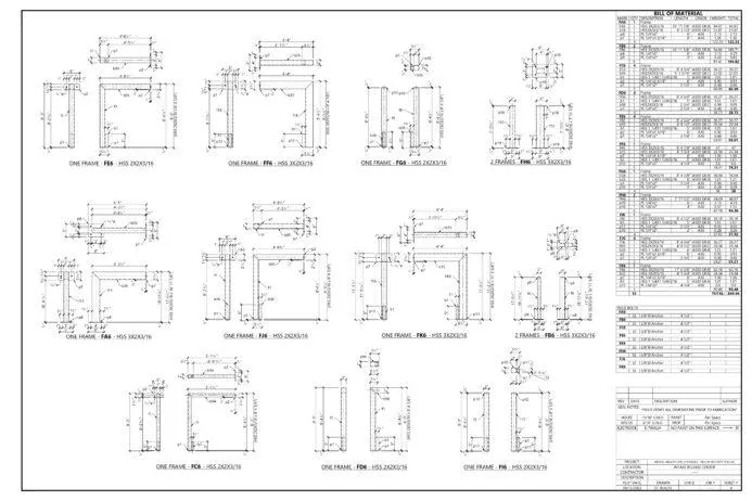
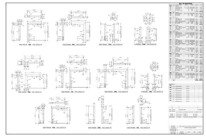
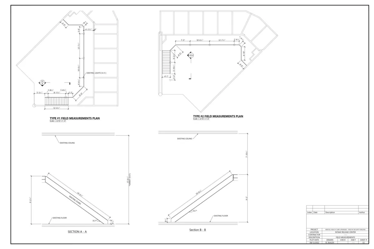
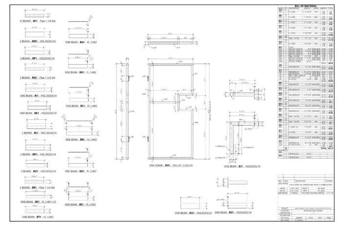
Miscellaneous and structural steel detailing
Structural steel detailing involves creating detailed plans for fabricators and erectors. These drawings guide erectors on-site, showing how and where to install each steel member, and inform fabricators of the exact specifications for each piece. It's a specialized field of structural drafting.

A steel detailer interprets architectural and engineering drawings to create detailed designs for fabricating and erecting steel components like beams, trusses, and stairs in large structures such as buildings, bridges, and stadiums.






Instagram
LinkedIn
Facebook